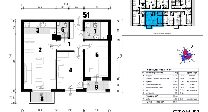
Dvoiposoban stan na prodaju, Novogradnja, Ledena Stena, 109055€, 64.15m²


od 109.055 €
1.700 € / m2
- Status izgradnje: U izgradnji
- Status prodaje: Prodato
- Etažno grejanje
- Materijal gradnje: Nepoznato
- Stolarija: PVC
- Podovi: Parket
- 4 lifta
- Kalorimetar: Ne
- Godina izgradnje: 2024.
Ovaj oglas je deo projekta
Sunny Hill by Vagres

O projektu oglašivača Vagres ing d.o.o.
PRODAJA STANOVA DIREKTNO OD INVESTITORA - BEZ AGENCIJSKE PROVIZIJE Sunny Hill - Vagres ing d.o.o. Na lokaciji Ledena Stena planirana je izgradnja stambeno-poslovnog kompleksa koji čine sedam lamela spratnosti 2Po+P+6. Planirani stambeno-poslovni objekat okružuju ulica Bubanjski heroji, ulica Petra Aranđelovića, ulica Stojana Andrića i ulica Belotinačka. Objekat ima direktan pristup na površinu javne saobraćajnice, Bubanjski Heroji na severozapadu, ulica Petra Aranđelovića na severoistoku, ulica Stojana Andrića jugoistoku i ulica Belotinačka na jugozapadu. Ukupna površina parcele je 7.792m2. Parkiranje je planirano na parceli u podzemnim garažama i to za svaki stan po jedno parking mesto, i jedno parking mesto na 70m2 korisne površine poslovnog prostora. Ukupan broj parking i garažnih mesta je trista devedest I jedno (391) od čega dvadeset sedam (27) parking mesta smeštena na parteru su predviđena za lica sa posebnim potrebama. Na parceli je predviđena ukupna površina pod zelenilom, travom, niskim rastinjem što čini 13,65% od ukupne površine građevisnke parcele. Ispod površina namenjenih zelenilu nema podzemnih etaža, odnosno podrumskih prostorija. Stanovi u ponudi različitih veličina (30-100m2) i rasporedom prostorija koje savršeno odgovaraju standardnim veličinama nameštaja.
Stambeni krediti
- Period otplate od
96 -360 meseca
- NKS 4.50%
EKS 5.74%
Fiksna kamatna stopa
- Bez troškova obrade kredita
- Period otplate od
96 -360 meseca
- NKS 4.34%
Kombinovana kamatna stopa
- Bez troškova obrade kredita
- Odobrenje kredita do 48h
stranici kreditnih kalkulatora
Keš krediti
Period otplate
13 meseci