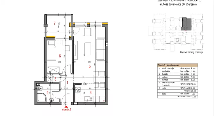
Trosoban stan na prodaju, Novogradnja, Lesnina, 71.25m²


Cena na upit
- Status izgradnje: U izgradnji
- Status prodaje: Na prodaju
- Podno grejanje
- Energent: Gas
- Materijal gradnje: Građevinski blok
- Stolarija: PVC
- Podovi: Pločice, Tarket
- Energetski pasoš: Da
- Prodaja parkinga: Dostupno
- 3 lifta
- Kalorimetar: Da
- Godina izgradnje: 2026.
Ovaj oglas je deo projekta
Projekat Toše Jovanovića 50

O projektu oglašivača Maksimović gradnja doo
Stambeni kompleks TJ50 je smešten u Zrenjaninu u ulici TOSE JOVANOVICA na br 50 koja se nalazi u neposrednoj blizini centra grada Zrenjanina.
Ulica Tose Jovanovica vazi za jednu od najlepsih ulica u Gradu Zrenjaninu.
Stambeni kompleks je udaljen od najbitnijih gradskih sadržaja na svega nekoliko minuta laganog hoda.
Stambeni kompleks je projektovan po najvisim standardima.Sastojace se od 3 stambene zgrade, izgradnja je planirana u 3 faze, (spratnost objekta faza I- je P+1+Pk a objekata faza II i faza III je Su+Vp+1+Pk).Faza 1 je useljena u dogovorenom roku i uknjižena,Faza 2 je u izgradnji i rok završetka je septembar 2026god,faza 3 je u pripremi.
Ukupno u sva tri objekta je smesteno 86 stambenih jedinica.Parking prostor je obezbedjen za 96 vozila na otvorenom parkingu unutar kompleksa i garazama u suterenu objekata faza 2 i faza 3.Posebna pogodnost kompleksa su objekti niske spratnosti sa ugrađenim liftom i mali stepen zauzetosti na parceli (39%). U ponudi se nalaze stanovi različitih struktura, površina od 35 do 120 m2.
Pri projektovanju vodilo se računa o energetskoj efikasnosti, a izradom elaborata utvrđeno je da zgrade pripadaju energetskom razredu “B”, što dokazuje vrhunski kvalitet projekta i upotrebljenih materijala.
Zagrevanje objekata je rešeno putem gas generatora najnovije generacije.Obracun utrosene energije se vrsi putem kalorimetra posebno za svaku stambenu jedinicu. Unutar stambeno kompleksa predviđeno je formiranje travnatih površina,na površini od 1200m2 (na 20% ukupne površine parcele). Za kretanje vozila unutar stambeno-poslovnog kompleksa predviđen je dvosmerni saobraćaj, sa 1 kolskim ulazom.
U stambenom kompleksu izgrađena je nova trafostanica .
Stambeni krediti
- Period otplate od
96 -360 meseca
- NKS 4.50%
EKS 5.74%
Fiksna kamatna stopa
- Bez troškova obrade kredita
- Period otplate od
96 -360 meseca
- NKS 4.34%
Kombinovana kamatna stopa
- Bez troškova obrade kredita
- Odobrenje kredita do 48h
stranici kreditnih kalkulatora
Keš krediti
Period otplate
13 meseci