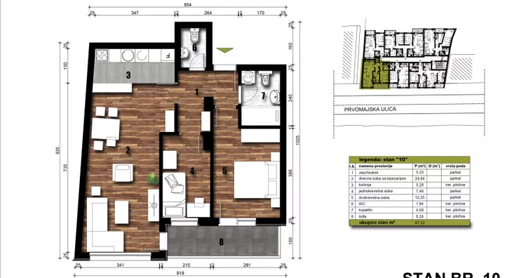
Dvoiposoban stan na prodaju, Novogradnja, Crveni Pevac, 67.22m²


Cena na upit
- Status izgradnje: U izgradnji
- Status prodaje: Prodato
- Centralno grejanje
- Materijal gradnje: Nepoznato
- Stolarija: Aluminijum
- Podovi: Parket
- Prodaja parkinga: Dostupno
- 1 lift
- Kalorimetar: Da
- Godina izgradnje: 2024.
Ovaj oglas je deo projekta
Prvomajska

O projektu oglašivača Vagres ing d.o.o.
Na predmetnoj lokaciji planirana je izgradnja stambeno-poslovnog objekta spratnosti Po+P+6.
Predmetna lokacija sa istočne strane ima direktan izlaz na izgrađenu saobraćajnicu, ulicu Prvomajsku.
Katastarske parcele su maksimalnih dimenzija oko 30,00m x 37,00m, ukupne površine 874,00m².
Parkiranje je rešeno na parceli i u podzemnoj garaži i to za svaki stan po jedno parking mesto i jedno parking mesto na 70m² korisne površine poslovnog prostora.
Ukupan broj parking i garažnih mesta je četrdeset (40) mesta od čega dva (2) parking mesta smeštena na parteru su predviđena za lica sa posebnim potrebama.
Na parceli je predviđena ukupna površina pod zelenilom, travom, niskim rastinjem što čini 10,19% od ukupne površine građevinske parcele.
Ispod površina namenjenih zelenilu nema podzemnih etaža, odnosno podrumskih prostorija.
Spoljna stolarija je drvo-aluminijum i zastakljena niskoemisionim termoizolacionim staklom d=4+16+4mm.
Unutrašnja drvena stolarija je grundirana, bojena masnom bojom i lakirana.
Podna obloga u stambenim prostorijama je od bukovog parketa.
Prozori i balkonska vrata su opremljeni aluminijumskim roletnama.
Zidovi i podovi sanitarnih prostorija su obloženi keramikom i opremeljeni sanitarnim elementima i tuš baterijom.
Ulazna vrata u stanovima su metalna sigurnosna, vatrootpornosti 60 min.
Svaka stambena jedinica poseduje svoj vodomer.
Završna obrada fasade je kontaktna termoizolovana fasada.
Svaki od stanova poseduje svoju podrumsku ostavu (≈2m2).
Stanovi u ponudi različitih veličina (46-90m2) i rasporedom prostorija koje savršeno odgovaraju standardnim veličinama nameštaja.
Stambeni krediti
- Period otplate od
96 -360 meseca
- NKS 4.34%
Kombinovana kamatna stopa
- Bez troškova obrade kredita
- Odobrenje kredita do 48h
- Period otplate od
96 -360 meseca
- NKS 4.50%
EKS 5.74%
Fiksna kamatna stopa
- Bez troškova obrade kredita
stranici kreditnih kalkulatora
Keš krediti
Period otplate
13 meseci